Barrierefreiheit
Barrierefreie Küchen: warum sie wichtig sind
BARRIEREFREI, ABER VOLLER MÖGLICHKEITEN - KÜCHEN, DIE FÜR ALLE ZUGÄNGLICH SIND
Eine Küche ist mehr als nur ein Ort zum Kochen – sie ist das Herzstück des Zuhauses, der Treffpunkt für Familie und Freunde, das Zentrum des Lebens. Hier wird gemeinsam gespeist, gelacht und gelebt. Doch was, wenn die hohen Schränke unerreichbar sind, die Arbeitsfläche nicht bequem nutzbar oder Stolperfallen an jeder Ecke lauern? Dann wird es höchste Zeit für eine Küche, die mitdenkt, mitwächst und sich an Ihre Anforderungen und Bedürfnisse anpasst!
Barrierefreie Küchen sind so individuell wie die Menschen, die sie nutzen:
- Senior*innen wünschen sich ergonomische Lösungen,
- Rollstuhlfahrer*innen brauchen unterfahrbare Flächen,
- für Menschen mit Sehbehinderung sind Kontraste und Beleuchtung entscheidend.
Eine barrierefreie Küche bedeutet Unabhängigkeit, Sicherheit und Komfort – für alle.
Und das Beste? Moderne barrierefreie Küchen müssen nicht auf Ästhetik verzichten – im Gegenteil: Innovative Lösungen verbinden Design und Funktionalität und fügen sich stilvoll in jedes Wohnkonzept ein. Höhenverstellbare Arbeitsplatten, smarte Elektrogeräte mit Sprachsteuerung oder clever platzierte Steckdosen sind nur einige der Möglichkeiten, die eine durchdachte Planung bietet.
Ob neue Traumküche oder Umbau der bestehenden Küche – in einer individuellen Premiumberatung zeigen wir, wie Ihre Küche zur perfekten Wohlfühloase wird. Denn barrierefrei heißt nicht nur funktional, sondern perfekt auf Ihre Wünsche abgestimmt!
Die wichtigsten Aspekte
Clever geplant – Die Must-haves für eine barrierefreie Küche
Barrierefreiheit heißt Freiheit – die Freiheit, selbstständig zu kochen, zu genießen und sich in der Küche frei zu bewegen. Stellen Sie sich eine Küche vor, die genau auf Ihre Bedürfnisse reagiert: Ein Kühlschrank, dessen Tür sich sanft per Sensor öffnet. Eine Arbeitsplatte, die sich auf Knopfdruck an Ihre Höhe anpasst. Smarte Technik, die Ihnen den Alltag erleichtert. Klingt nach Zukunft? Bei Rosenowski wird genau das heute Realität.
Küchen sollten so einzigartig sein wie ihr*e Besitzer*in. Genau deshalb ist eine durchdachte Planung das A und O, um Ihre Wünsche und Bedürfnisse perfekt zu erfüllen. Kein umständliches Bücken, keine unerreichbaren Schränke, keine Kompromisse.

Unsere barrierefreien Küchen bieten:
- Intelligente Stauraumlösungen mit leicht-gängigen Auszügen und absenkbaren Oberschränken bringen alles in greifbare Nähe
- Höhenverstellbare Arbeitsplatten und unterfahrbare Kochbereiche passen sich an — perfekt für entspanntes Arbeiten im Sitzen oder Stehen.
- Freie Bewegung ohne Hindernisse. Keine Schwellen, keine engen Gänge — nur jede Menge Platz, um sich sicher und ungehindert in der Küche zu bewegen.

Technologie macht den Alltag leichter:
- Sprachgesteuerte Elektrogeräte reagieren auf Ihr Kommando.
- Ein sanfter Druck genügt, und Schränke oder Kühlschranktüren öffnen sich wie von selbst – dank elektrischer Öffnungssysteme.
- Steuern Sie Licht, Backofen oder Kochfeld einfach per App.

Eine gute Planung schützt auch vor Gefahren:
- Blendfreie Beleuchtung für optimale Sicht, auch in den hintersten Ecken der Schränke.
- Rutschfeste Böden minimieren das Sturzrisiko.
- Hochgebaute Backöfen mit versenkbarer Tür für müheloses Bedienen.
- Sichere Steckdosen auf optimaler Höhe.
Es muss es nicht gleich eine komplett neue Küche sein. Oft können auch kleine Anpassungen eine große Wirkung haben. Höhenverstellbare Arbeitsplatten nachrüsten, helle Oberflächen für bessere Lichtreflexion oder Sicherheitslösungen wie rutschfeste Matten und kontrastreiche Markierungen – viele Anpassungen lassen sich unkompliziert realisieren.
Zeit für Veränderung? Ob Sie nun eine neue Küche planen oder Ihre bestehende optimieren möchten, mit der richtigen Planung wird Ihre Küche nicht nur barrierefrei, sondern auch zu einem echten Lieblingsort. Lassen Sie uns gemeinsam Ihre Traumküche gestalten!
Stilvoll, smart, barrierefrei – So wird Ihre Küche ein echtes Design-Statement
Funktionalität und Ästhetik? Kein Widerspruch, sondern das perfekte Duo! Eine barrierefreie Küche kann nicht nur praktisch, sondern auch ein echtes Design-Statement sein. Mit der richtigen Materialwahl, cleveren Kontrasten und modernen Farbkonzepten entsteht eine Küche, die in jeder Hinsicht überzeugt.
Pflegeleichte Oberflächen wie matte Lackfronten oder beschichtete Holzoptiken sorgen für eine edle Optik und lassen sich leicht reinigen. Wer Akzente setzen möchte, nutzt Kontraste gezielt als Design-Element: Helle Schränke mit dunklen Griffleisten oder farblich abgesetzte Arbeitsplatten erleichtern Menschen mit Sehbehinderung die Orientierung – und verleihen der Küche gleichzeitig eine moderne Note.
Ob skandinavisch schlicht, mit warmen Naturtönen oder im urbanen Industrial-Style – eine durchdachte Gestaltung verbindet Stil und Funktion. Blendfreie Beleuchtung setzt Highlights, grifflose Schränke mit Touch-Mechanismus sorgen für Komfort, und unterfahrbare Arbeitsflächen fügen sich elegant ins Design ein.

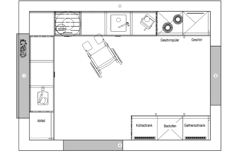
Eine Küche ohne Grenzen – maßgeschneidert für Genuss und Gemeinschaft
Unser Kunde, ein leidenschaftlicher Gastgeber und Rollstuhlfahrer, wünschte sich eine barrierefreie Küche, die Funktionalität und Geselligkeit vereint. Mit cleveren Stauraumlösungen, zwei Arbeitshöhen und einem offenen Design entstand ein Raum, der seinen Alltag erleichtert und Gäste willkommen heißt.
IHRE ANFRAGE FÜR IHRE Barrierefreie Küche

Beim ersten Termin in unserem Küchenstudio Hannover oder in Thönse sprechen wir mit Ihnen darüber, wie genau Ihre barrierefreie Küche aussehen soll. Hier legen wir den Grundstein für die Küche, die sie sich wünschen.

Nach der Bedarfsermittlung beginnen wir mit der Planung Ihrer neuen Küche. Wir berücksichtigen dabei Ihre Anforderungen und Wohnstil, so dass Sie die Küche bekommen, die zu Ihnen passt.

Bei einem Anschlusstermin gehen wir unsere Planung Schritt für Schritt mit Ihnen durch. Sie bekommen eine Übersicht hinsichtlich der Optionen für die Ausstattung. Gemeinsam legen wir dann die finalen Parameter für Ihre Küche fest.

Der gesamte weitere Prozess ist auf eine enge Zusammenarbeit von Ihnen, unseren Mitarbeitern und allen notwendigen Gewerken ausgerichtet. Wir bündeln alle notwendigen Ressourcen, um die Küche zu realisieren, die Ihre Erwartungen erfüllt.

Hochqualifizierte Experten kümmern sich um die perfekte Montage Ihrer Wunschküche. Dank ihrer jahrelangen Erfahrung, handwerklichem Geschick und umfassendem Fachwissen montieren sie Ihre Küche schnell und präzise.
Sie planen eine neue barrierefreie Küche und möchten gerne einen Termin in einem unserer Küchenstudios vereinbaren? Einfach das Formular ausfüllen und wir melden uns.
